According to BluePrint Africa Residence Camillia is a gated community project in Abidjan ,Cote d’ivoire. The community of 63 units will be in the residential neigborhood of Cocody. Built not far from the Lagoon,residents of this community will be able to enjoy a more nature oriented experience of city living,far away from noise,air pollution and busy commercial activities.
A Hub for African Architecture, Design and Eco-friendly Development projects.
Wednesday, June 06, 2012
Unexpected Architectural Unions

"...Having lived in Japan for more than ten years as well as being born in Ethiopia, makes for an exotic and rare profile. In all my wanderings, I have hardly met any Ethiopians or Eritreans, Habesha people, in Japan. So, when I read about a project that was recycling architecture between Ethiopia and Japan, to say that my curiosity was peaked would be down playing it. The project combines several interests of mine, Japanese traditional architecture, sustainable and environmentally conscientious design and Africa. The Millennium Pavilion relocation project began in 2007 to celebrate the Ethiopian millennium1 as way to build a bridge between the two countries. It is located in Gondar a historically rich and significant city in Ethiopia, the imperial capital during the 16th & 17th century..."
Photo courtesy of Another Africa
Tuesday, June 05, 2012
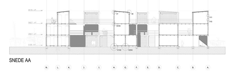
TwentyEleven project
The TwentyEleven project by Architects Chris Idema and Reinier Simons is an attempt create a multifunctional Fab Workshop as well as dwellings for the inhabitants of the slums of Kibera.
According to them
"...Together with 236 inhabitants (including 52 families, 15 small companies and three workshops (two specialized in wood, one of which will become a concrete workshop and one metal), of the slums in Nairobi, we will develop a new building plan for the future inhabitants of the TwentyEleven complex..."
"...We tried to maintain the balance between an organized structure and, respect and freedom in our design. It is of great importance that the historical culture of the slum-dweller is retained in the upbringing of the new members of a community.
They need to be taught how to behave and what the norms, values and rules are when living in a slum and being a part of the community. This is what makes the community livable in for all its inhabitants.
Why should we westerners disrupt this culture? Our goal, in a country that is not our own and a culture that does not belong to us, is one of ‘letting go’. Give the Kenyans a new vision, a new idea and a system to build with, but give them a chance to have their say and let them do the building. The bond between an inhabitant and his home is one of great importance, an intensive cooperation process will help with this..."

"...We looked at how the people live in the situation they are in, what their social activities are and what is needed to survive in a slum like Kibera. These and other elements are set in a well-developed plan, which looks at the current way of life and interaction in a slum and improves the two. A newly gained freedom in combination with all the necessities like hygiene, clean water, a controlled cooking environment and better living conditions in general ensure that 236 scorned slum-dwellers rise in status and that with less worries about their housing situation, they will have more time and energy to develop themselves, their children and their environment...."
"...The order that arises in the uncontrolled chaos of a slum is beautiful. A kind of harmony, an oasis is created that works as a source of inspiration for those living in it, encouraging them to work towards a better way of life..."
"...Together with 236 inhabitants (including 52 families, 15 small companies and three workshops (two specialized in wood, one of which will become a concrete workshop and one metal), of the slums in Nairobi, we will develop a new building plan for the future inhabitants of the TwentyEleven complex..."
"...We tried to maintain the balance between an organized structure and, respect and freedom in our design. It is of great importance that the historical culture of the slum-dweller is retained in the upbringing of the new members of a community.They need to be taught how to behave and what the norms, values and rules are when living in a slum and being a part of the community. This is what makes the community livable in for all its inhabitants.
Why should we westerners disrupt this culture? Our goal, in a country that is not our own and a culture that does not belong to us, is one of ‘letting go’. Give the Kenyans a new vision, a new idea and a system to build with, but give them a chance to have their say and let them do the building. The bond between an inhabitant and his home is one of great importance, an intensive cooperation process will help with this..."

"...We looked at how the people live in the situation they are in, what their social activities are and what is needed to survive in a slum like Kibera. These and other elements are set in a well-developed plan, which looks at the current way of life and interaction in a slum and improves the two. A newly gained freedom in combination with all the necessities like hygiene, clean water, a controlled cooking environment and better living conditions in general ensure that 236 scorned slum-dwellers rise in status and that with less worries about their housing situation, they will have more time and energy to develop themselves, their children and their environment...."
"...The order that arises in the uncontrolled chaos of a slum is beautiful. A kind of harmony, an oasis is created that works as a source of inspiration for those living in it, encouraging them to work towards a better way of life..."
Subscribe to:
Comments (Atom)
